Hi there,
I'm hoping I can get a little final advice on my intended cabling setup for my house, please. I've chatted to a few friends already, but I thought I'd open it up to people who are almost certainly more experienced at this kind of thing.
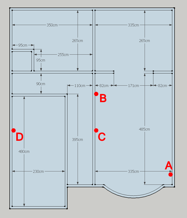
Firstly, here's a floorplan of my ground-floor. The first-floor is approximately the same layout, with the bathroom top-left and the other three rooms as bedrooms. The TV/AVR/PS3/etc is at (A), the door to the hallway is at (B), an existing hole-in-the-floor is at (C), and the newly converted garage (becoming a study) is where (D) will be, and where my computers will be living post-conversion (work happening at the moment).
Current setup
- External cable-in at (A)
- Virgin Superhub (modem mode) and D-Link DIR-615 802.11n router (running DD-WRT) at (B)
Intended setup
The cable-in won't change at (A), but the Superhub will move to (A) to join it. There will then be a Cat5e cable run around the bay and along the wall to (B) where the DIR-615 router will remain. Two Cat5e cables will then come out of the router, the first of which will run back to (A) where there'll be a four-port gigabit switch for the AV equipment, and the second of which will run to (C) where there'll be a socket, connected by Cat5e cable to another one at (D). At (D), in the new study, there'll be a further four-port (maybe more?) gigabit switch to handle my computers and printers.
My biggest constraint in that system is going to be the DIR-615 router, as I believe it's a 10/100 one for LAN. So, I figure I'm going to have to buy another Wi-Fi N router (gigabit lan), two gigabit switches, plenty of Cat5e cabling, crimping tool, RJ-45 plugs, and a couple of RJ-45 sockets (for C and D). I was hoping to get all of that for around £150 ... is that reasonable?
The intention is to stream media (including HD) from the study to the AV in the living room. I'm looking for a system to last a couple of years, until I get a decent 802.11ac router to cover the whole house without cables (wishful thinking???). I cannot get under nor lift the floor in the living-room as it's made of floorboards that we don't want to damage or move, however the existing hole at C is from an old radiator that's now been taken out, so should hopefully give us a way through the hall walls.
Many thanks in advance for your advice. Please feel free to highlight any seemingly-stupid decisions. There may be a reason I've made them, but they could equally be just dumb!
[EDIT] Forgot to say that I have Virgin 120Mb broadband, so even 100Mb network would restrict me (although just about be liveable with if it was genuinely 100Mb).


LinkBack URL
About LinkBacks

Reply With Quote


